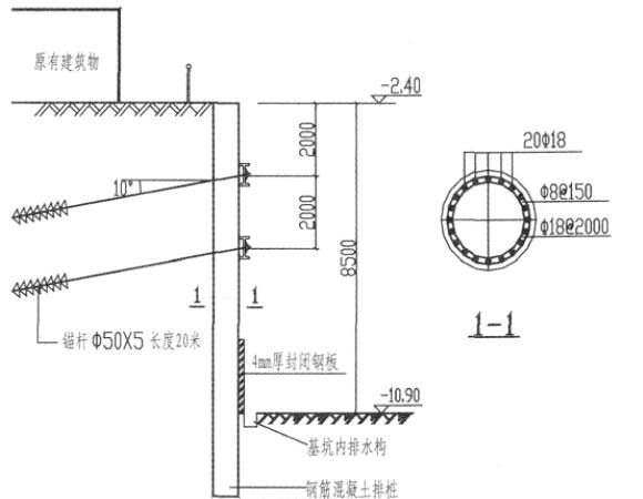
桩锚支护
上一节
下一节
若施工场地狭窄、地质条件较差、基坑较深、或对开挖引起的变形控制较严,则可采用排桩或地下连续墙支护结构。
排桩可采用钻孔灌注桩、人工挖孔桩、预制钢筋混凝土板桩和钢板桩等。桩的排列方式通常有柱列式、连续式和组合式。排桩支护结构除受力桩外,有时还包括冠梁、腰梁和桩间护壁构造等构件,必要时还可设置一道或多道支撑或锚杆。排桩支护结构适合于开挖深度在6~10m的基坑。

地下连续墙是采用特制的成槽机械在泥浆护壁下,逐段开挖出沟槽并浇注钢筋混凝土板而形成。地下连续墙能挡土、止水,可作地下结构外墙,具有刚度大、整体性好、振动噪音小、可逆作法施工以及适用各种地质条件等优点,但废泥浆处理不好会影响城市环境,而且造价也较高,因此,适合于开挖深度大于10m、对变形控制要求较高的重要工程。

单层支锚桩、墙支护结构因在顶端附近设有一支撑或拉锚,可认为在支锚点处无水平移动而简化成一简支支撑,但桩、墙下端的支承情况则与其入土深度有关,因此,单支锚支护结构的计算与桩墙的入土深度有关。

当土质较差,基坑又较深时,通常采用多层支锚结构,支锚层数及位置则根据土层分布及性质、基坑深度、支护结构刚度和材料强度以及施工要求等因素确定。 目前对多支点支护结构的计算方法通常采用等值梁法、连续梁法、支撑荷载1/2分担法、弹性支点法以及有限单元法等。


