知识点1 构架的基本知识

构架是安装转向架各零部件,使之组成一体,正常发挥功用的机架。有铸钢侧架(用于货车转向架)、H形构架、U形构架、框架形构架等。侧架两侧铸有导框,构架两侧装有导框或导柱等轴箱定位装置。客车转向架构架上铸有安装摇枕弹簧减振装置及安装基础制动装置的各种吊座。
(1)城轨车辆转向架构架的作用
转向架的构架是转向架的骨架,主要功能用于联系安装转向架各组成部分和传递各方向的力,并用来保持车轴在转向架内的位置。
(2)构架的组成
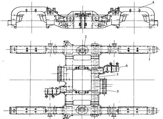
如图5.13所示为构架的组成,由图可知构架主要由左、右侧梁,一根或几根横梁及前后端梁组焊而成。侧梁是构架的主要承载梁,是传递垂向力、纵向力和横向力的主要构件,侧梁还用来确定轮对位置。横梁和端梁用来保证构架在水平面内的刚度,使两轴平行并承托牵引电机等。构架上还设有空气弹簧座、中心安装座、轴箱吊框、电机安装座、齿轮箱吊座、制动吊座、牵引拉杆安装座、高度控制阀座、抗侧滚扭杆座、减振器座和止挡等,用于安装相关设备。构架的强度和刚度对转向架的性能很重要,其主要破坏形式是裂纹和变形。

图5.13 构架的组成
(3)构架的分类
1)铸钢构架与焊接构件
按制造工艺分,城轨车辆转向架的构架主要有铸钢构架和焊接构架两种形式。
铸钢构架质量大,铸造工艺复杂,在使用中受到一定程度的限制,城市轨道交通车辆中一般不采用铸钢构架。焊接构架的组成梁件为中空箱形,质量轻,节省材料,又能满足强度和刚度的要求,因此,应用较广泛。尤其是压型钢板的焊接构架,其梁件可以按等强度设计,箱形截面尺寸可依据各部位受力情况而大小不等,使各截面的应力接近,并可合理地分布焊缝,减少焊缝数量,不但具有足够的强度,且质量轻,材料利用率更高,只是对制造设备要求较高,成本也较高,比如,我国上海、广州地铁均采用了压型钢板焊接构架。
2)结构形式
如图5.14所示,城轨车辆转向架的构架按结构形式分为开口式、封闭式、H形、日字形、目字形等,其判断依据主要由横梁的数目与位置决定,开口式、H形、日字形最为常见。

图5.14 构架
1-侧梁;2-空气弹簧座;3-横梁;4-轴箱吊框; 5-电机安装座;6-齿轮箱吊座
(4)转向架构架的设计原则
城轨车辆转向架构架与铁路车辆构架在设计时均须遵守以下原则:
①必须全面考虑构架与各有关零部件的相互位置关系,合理布置结构。
②构架各梁尽可能设计成等强度梁,以保证能获得最大强度和最小自重。
③构架各梁的布置应尽可能对称,以简化设计和制造。
④各梁本身以及各梁组成构架时,必须注意减少应力集中。
⑤除了保证强度外,应合理设计构架的刚度,使其具有一定的柔性。
⑥焊缝的结构尺寸和布置应选择合理,并注意消除焊接应力。
⑦在构架上需考虑设置机车车辆出轨使其复位的支撑部位。(1)北京地铁10号线车辆转向架的构架
如图5.15和图5.16所示构架分别为北京地铁10号线车辆动车用构架和拖车用构架的结构示意图,由图可知其结构的主干部分完全相同,比如侧梁和横梁无缝钢管的尺寸是相同的,主要区别是根据各自所安装的设备的不同,例如,动车构架带有电机吊座、齿轮箱吊台等,都属于H形构架,钢板焊接结构的箱形侧梁,与侧梁相贯通的无缝钢管作为横梁。为降低质量,简化结构,其设计具有以下特点:

图5.15 北京地铁10号线地铁车辆转向架拖车构架

图5.16 北京地铁10号线地铁车辆转向架动车构架
①横梁用无缝钢管制成,并用无缝钢管作附加空气室,替代以前转向架用摇枕作为附加空气室。
②侧梁和无缝钢管的焊接是用圆环形板进行加强,辅助附加空气室位于横梁两端,用来增加附加空气室的容积。
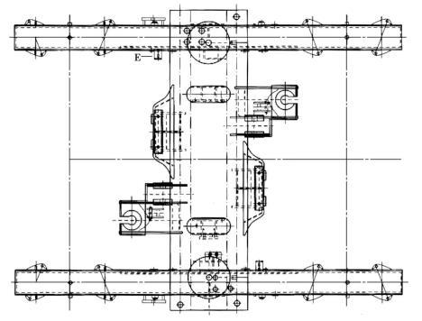
(2)深圳地铁1号线车辆转向架构架
如图5.17所示为深圳地铁1号线车辆转向架的构架,由图可知这种构架由两根侧梁和两根横梁组成的焊接构架,并组成箱形结构,可承受较大的载荷,达到最优化的强度与质量之比值。构架形式为H形构架;动车转向架构架与拖车转向架是完全相同的,可以进行互换;每根侧梁的两端具有两个对称布置的一系弹簧座,用来固定一系圆锥叠层橡胶弹簧;构架侧梁两端设有4个起吊座;空气弹簧座位于侧梁的中心;制动单元座、牵引电机悬挂安装座、液压减振器吊座、抗侧滚扭杆安装座、高度阀杆及其他转向架安装部件的支撑座均焊接(或安装)在构架上。

图5.17 深圳地铁1号线地铁车辆转向架动车构架
1,3-构架侧梁;2-电机吊座
(3)ZMA080型转向架构架
如图5.18所示,ZMA080型转向架是中国南车株洲电力机车有限公司在上海轨道交通明珠线二期工程的地铁车辆中引进西门子公司技术的转向架。其结构是由两根侧梁和中间横梁组成,两根侧梁由中间横梁连接,构成无摇枕的H形结构,采用低合金高强度的钢板。构架的侧梁在转向架中间降低以便安装空气弹簧。侧梁上有制动单元的安装座,中间横梁上有支撑电机和齿轮箱的托架。
动车转向架和拖车转向架采用相同构架,带有动车转向架和拖车转向架需要的安装座,以保证可以完全互换。

图5.18 ZMA080地铁车辆转向架动车构架
【小贴士】一般地,客车转向架构架为焊接构架,货车转向架为铸钢构架。

