1.3 厂区简介、总平面图及改造厂房平剖面图
1.3.1 厂区简介
鞍钢集团(鞍山)铁路运输设备制造有限公司简介
一、鞍钢矿山运输设备总厂建厂初期介绍
鞍钢矿山运输设备总厂创建于1973年5月,当时定名为鞍钢矿山三车修理厂,简称“三车厂”。是鞍钢矿山电力机车、准轨工矿车、大型汽车等运输设备修理和制造中心。厂区占地面积57万平方米,建筑面积13万平方米。全厂设计编制定员5049人。
1975年建设序幕拉开始,建设队伍总人数500人。
1977—1978年最高峰时各种施工人员达到6000人。
1982年1月基本建设结束。
1983年1月,经矿山公司批准,改称为鞍钢矿山运输设备修理厂
1985年底固定资产总额达8624万元,厂区占地面积578781平方米,全厂建筑面积18.7万平方米,设备总台数1478台,职工2822人。以维修矿山电力机车,大型载重汽车,矿山铁路自翻车和制造铁路车辆,备品备件的大型现代化工厂。
二、鞍钢集团(鞍山)铁路运输设备制造有限公司简介
2006年10月20日,集团公可决定,于2006年11月由原鞍山钢铁公司直属子公司鞍钢铁路设备检修公司与鞍钢矿业实业公司子公司鞍矿运输设备制造总厂合并重组,组建鞍钢集团铁路运输设各制造公司,按集团公司的全资子公司管理。
公司主厂区位于鞍山市千山区汤岗子泉东1街8号,全公司占地103.4万平方米,建筑面积25.2万平方米,拥有固定资产18634.4万,注册资金4181万元,厂房140座,各类设备1280台套,在籍职工1722名。
2013年5月,鞍钢集团铁路运输设备制造公司归属鞍钢工程技术发展有限公司全资子公司。
2017年12月,鞍钢集团铁路运输设备制造公司经过公司制改革,重新注册公司名为鞍钢集团(鞍山)铁路运输设备制造有限公司。
1.3.2 厂区总平面图

详见如下附件放大图及鸟瞰影像图
厂区总平面图PDF放大图:(可下载)
厂区鸟瞰影像图(可下载)

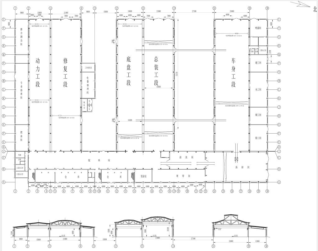
1.3.3 拟改造厂房位置及平剖面图
拟改造闲置厂房在总厂区平面图中的位置示意:

拟改造闲置厂房平剖面图:

拟改造闲置厂房平剖面图PDF放大图(可下载):

