项目一 室内装饰工程工程量计算
上一节
下一节
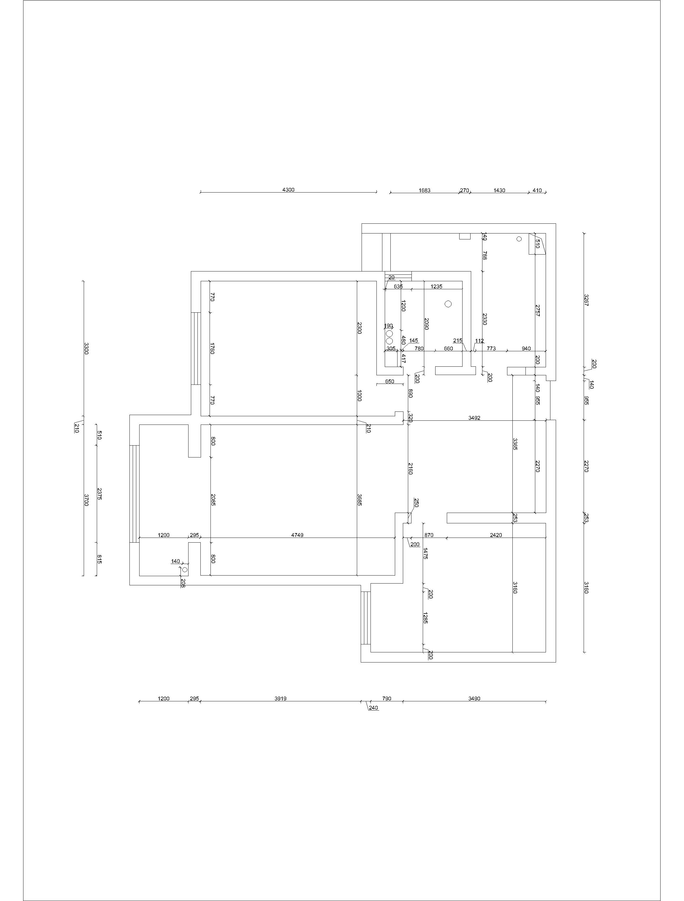
本节以编制施工图单位工程中分部工程楼地面工程和墙柱面工程部分的工程量清单为主,施工图见课程资料CAD图纸。

目录
本节以编制施工图单位工程中分部工程楼地面工程和墙柱面工程部分的工程量清单为主,施工图见课程资料CAD图纸。
