清单计算规则


定额计算规则
1.天棚龙骨按主墙间水平投影面积计算,不扣除间壁墙、垛、柱、附墙烟囱、检查口和管道所占的面积,扣除单个>0.3m²的孔洞、独立柱及与天棚相连的窗帘盒所占的面积。斜面龙骨按斜面计算。
2.天棚吊顶的基层和面层均按设计图示尺寸以展开面积计算。天棚面中的灯槽及跌级、阶梯式、锯齿形、吊挂式、藻井式天棚面积按展开计算。不扣除间壁墙、垛、柱、附墙烟囱、检查口和管道所占的面积,扣除单个>0.3m²的孔洞、独立柱及与天棚相连的窗帘盒所占的面积。
3.格栅吊顶、藤条造型悬挂吊顶、织物软雕吊顶和装饰网架吊顶,按设计图示尺寸以水平投影面积计算。吊筒吊顶以最大外围水平投影尺寸,以外接矩形面积计算。
案例1:
计算图示建筑内装潢为天棚吊顶的吊顶工程量,墙厚均为240,轴线均在中。

案例解答:
因天棚面层高低落差为2.8-2.6=0.2≤0.2,故为一级天棚
天棚龙骨S龙=(9.2-0.24)×(7.19-0.24)=62.27(m2)
天棚面层S面=62.27+[ (9.2-0.24-1.2×2)+(7.19-0.24-1×2)] ×2×0.2
=66.87(m2)
注:这里天棚面层按展开面积计算
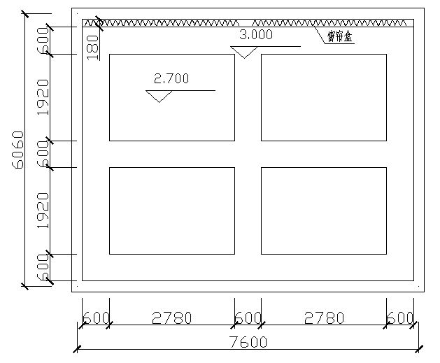
案例2:
某建筑如图采用装配式T型(不上人型)铝合金龙骨,面层采用600mm×600mm,钙塑板吊顶,塑料格栅。计算其吊顶工程量。


解:
因天棚面层高低落差为0.3>0.2,故为跌级天棚
铝合金龙骨
S龙=(7.6-0.24)×(6.06-0.24)-0.18×(7.6-0.24)
=41.51(m2)
钙塑板面层
S面=(7.6-0.24)×(6.06-0.24)-0.18×(7.6-0.24) +(2.78+1.92)×2×4×0.3=52.79 (m2)
注:这里龙骨和面层均要扣除窗帘盒所占面积
0.18×(7.6-0.24) (m2)
案例3:
某大学生礼堂的建筑平面图如下图所示,墙厚均为240,试计算其吊顶工程量。(轴线居中)(20分钟)

案例解答:
左天棚轻钢龙骨
S龙=(0.63+2.56×2+1.32-0.12)×(0.8+6.36+0.8)-π×2.452=36.46(m2)
左天棚石膏板面层:
S面=(0.63+2.56×2+1.32-0.12)×(0.8+6.36+0.8) -π×2.452+(0.63+2.56×2+1.32-0.12)×0.3×2=40.63(m2)
注:这里要扣面积大于0.3m2的灯孔。
右天棚轻钢龙骨
S龙=(1.36-0.24+2.56×2+1.33+0.39-0.12)(3.95+0.18+4.13-0.24)-0.6×0.6×6
= 60.72(m2)
右天棚硅酸钙板面层
S面=(1.36-0.24+2.56×2+1.33+0.39-0.12)(3.95+0.18+4.13-0.24)-0.6×0.6×6
= 60.72(m2)
任务工作单
序号 | 项目名称 | 单位 | 数量 | 工程量计算式 |
1 | 轻钢龙骨 | ㎡ | 97.18 | S =36.46+60.72 |
2 | 石膏板 | ㎡ | 40.63 | S =40.63 |
3 | 硅酸钙板 | ㎡ | 60.72 | S=60.72 |
实战训练:
项目:※住宅楼(图纸见教材所附光盘)吊顶工程量计算。
实施步骤参照附录6:团队组织实战训练方案
任务书及评价表见下:
任务书
类别 | 选择 | 备注 |
任务类别 |
| 招标书,投标书 |
进度要求 |
| 编制完成的时间限制 |
采用模式 |
| 清单模式,定额模式 |
采用的定额和计算规则 |
| 定额的地域和版本号 |
计算范围 |
| 本次需要计算的范围 |
不计算的范围 |
| 不需要计算的范围 |
汇总形式 |
| 按分层汇总,按分部汇总 |
采用的规范 |
| 设计所采用的施工规范和图集,例如88J1等图集 |
评价(评价填写:“满意”或“有待提高”) (5分钟)
能 力 目 标 | 能 力 | 自我评价 | 小组成员评价 |
解决问题 的能力 | 正确识读施工图纸的能力 |
|
|
能正确运用计算规则的能力 |
|
|
根据不同施工图准确计算天棚吊顶工程量的能力 |
|
|
发现问题和解决问题的能力 |
|
|
团队协作 的能力 | 计划与组织活动的能力 |
|
|
自我管理的能力 |
|
|
沟通、交流的能力 |
|
|
知识迁移 的能力 | 因不同吊顶形式解决问题的能力 | 能从施工的角度考虑吊顶的作用、计算范围 |
|
|
项目成果的迁移能力 | 对项目进行总结、分析 |
|
|