板钢筋
-
1 钢筋标注
-
2 钢筋构造
-
3 预习自测
上一节
下一节
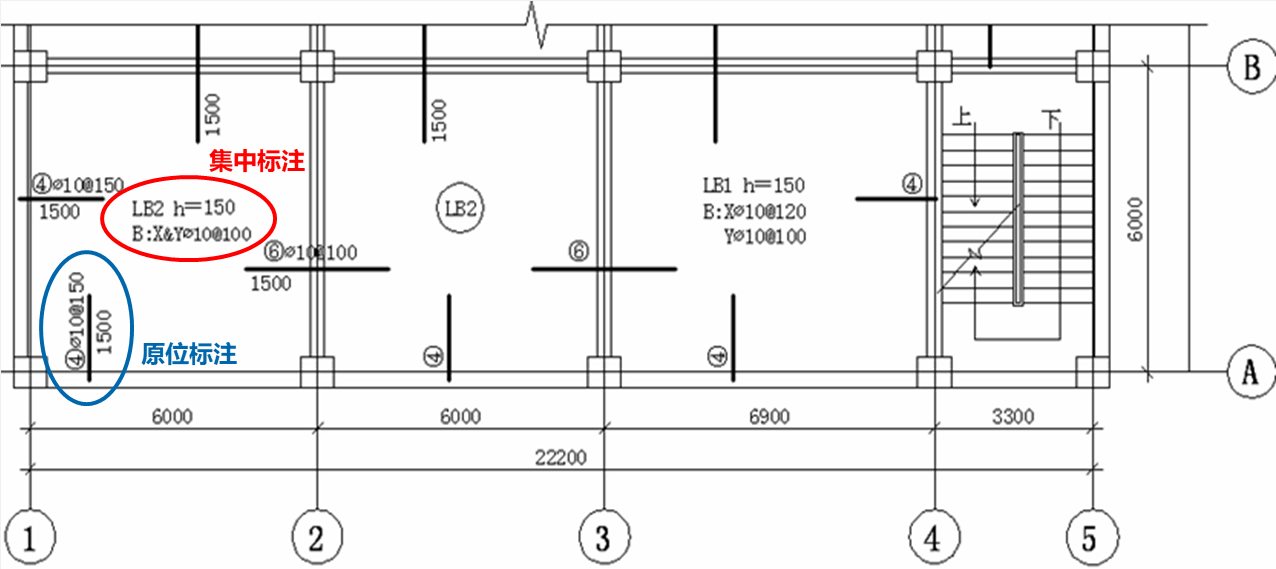
9.4.1 板平法施工图表示方法
本节以有梁楼盖平法施工图为例,讲解板钢筋的识图和计量。
平面注写包括板块集中标注和板支座原位标注。


