目录

  • 1 课程介绍
    • 1.1 课程概述
    • 1.2 岗证课课程重构
    • 1.3 课时分配
    • 1.4 考核标准
  • 2 【课】项目一:Auto CAD概述
    • 2.1 项目导学
    • 2.2 德育案例
    • 2.3 任务1 AutoCAD基础知识
    • 2.4 任务2:AutoCAD基本操作
    • 2.5 任务3:AutoCAD绘图准备
    • 2.6 任务4:AutoCAD绘图辅助工具
    • 2.7 章节测试
  • 3 【课】项目二:AutoCAD 基本绘图工具
    • 3.1 项目导学
    • 3.2 德育案例
    • 3.3 任务1:沙发、茶几组合
    • 3.4 任务2:燃气灶
    • 3.5 任务3:马桶与洗手池
    • 3.6 任务4:床与床头柜组合
    • 3.7 章节测试
    • 3.8 拓展练习
  • 4 【课】项目三:AutoCAD高级绘图命令
    • 4.1 项目导学
    • 4.2 德育案例
    • 4.3 任务1:1室1厅墙体与门窗
    • 4.4 任务2:1室1厅地面铺装图
    • 4.5 章节测试
  • 5 【课】项目四:CAD图形编辑命令
    • 5.1 项目导学
    • 5.2 德育案例
    • 5.3 任务1:衣柜
    • 5.4 任务2:1室1厅家具布置
    • 5.5 任务3:浴缸
    • 5.6 任务4:1室1厅墙体编辑
    • 5.7 章节测试
  • 6 【岗】项目五:拓展练习4室2厅户型
    • 6.1 项目介绍(民发.大观天下)
    • 6.2 绘制墙体定位图
    • 6.3 绘制平面布置图
    • 6.4 绘制地面铺装图
  • 7 【课】项目六:CAD注释与编制
    • 7.1 项目导学
    • 7.2 德育案例
    • 7.3 任务1:4室2厅区域名称
    • 7.4 任务2:4室2厅平面图尺寸标注
    • 7.5 任务3:4室2厅铺装图材料标注
    • 7.6 章节测试
    • 7.7 拓展练习
  • 8 【课】项目七:成块
    • 8.1 项目导学
    • 8.2 德育案例
    • 8.3 任务1:4室2厅插座图
    • 8.4 任务2:4室2厅天花图标高
    • 8.5 任务3:4室2厅动态门制作
  • 9 【课】项目八:施工图输出
    • 9.1 项目导学
    • 9.2 德育案例
    • 9.3 任务1:导出4室2厅PDF图纸
    • 9.4 任务2:导出4室2厅JPG图纸
    • 9.5 任务3:导出EPS图纸
  • 10 【岗】项目九:丽景华庭小区测量与绘制
    • 10.1 项目导学
    • 10.2 德育案例
    • 10.3 任务1:实地测量与绘制
    • 10.4 任务2:用户任务书填写
    • 10.5 任务3:初步方案设计
    • 10.6 任务4:平面图纸绘制
    • 10.7 任务5:立面图纸绘制
    • 10.8 任务6:文本制作与汇报
  • 11 【证】【赛】室内1+X证&职业技能竞赛
    • 11.1 【证】考试大纲
    • 11.2 【证】考试要求
    • 11.3 【证】考试样题
    • 11.4 【证】实操案例
    • 11.5 【赛】职业技能竞赛章程
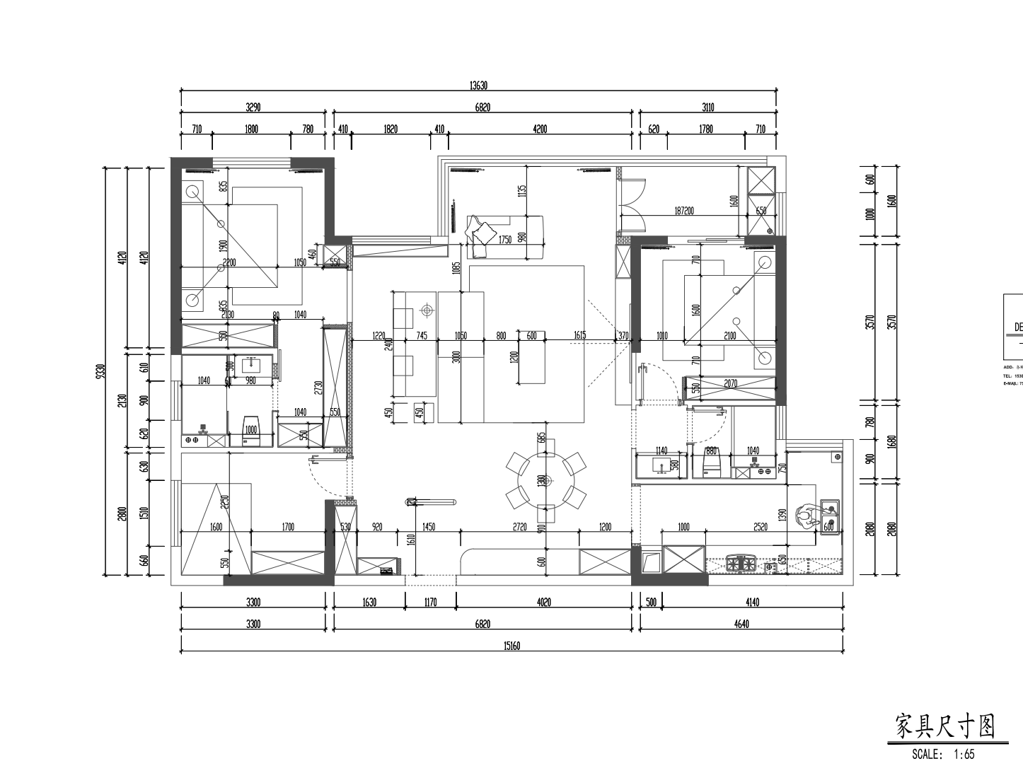
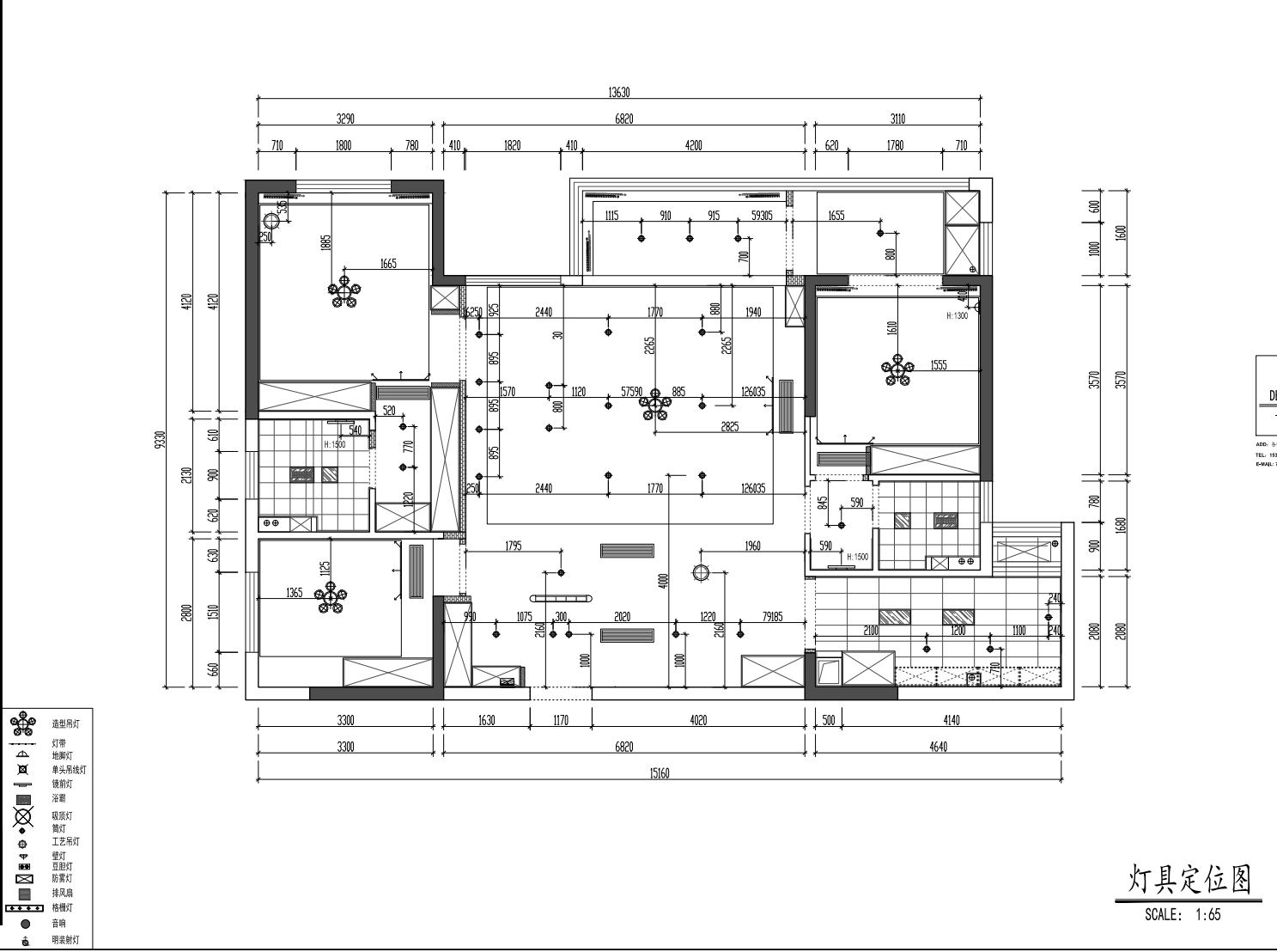
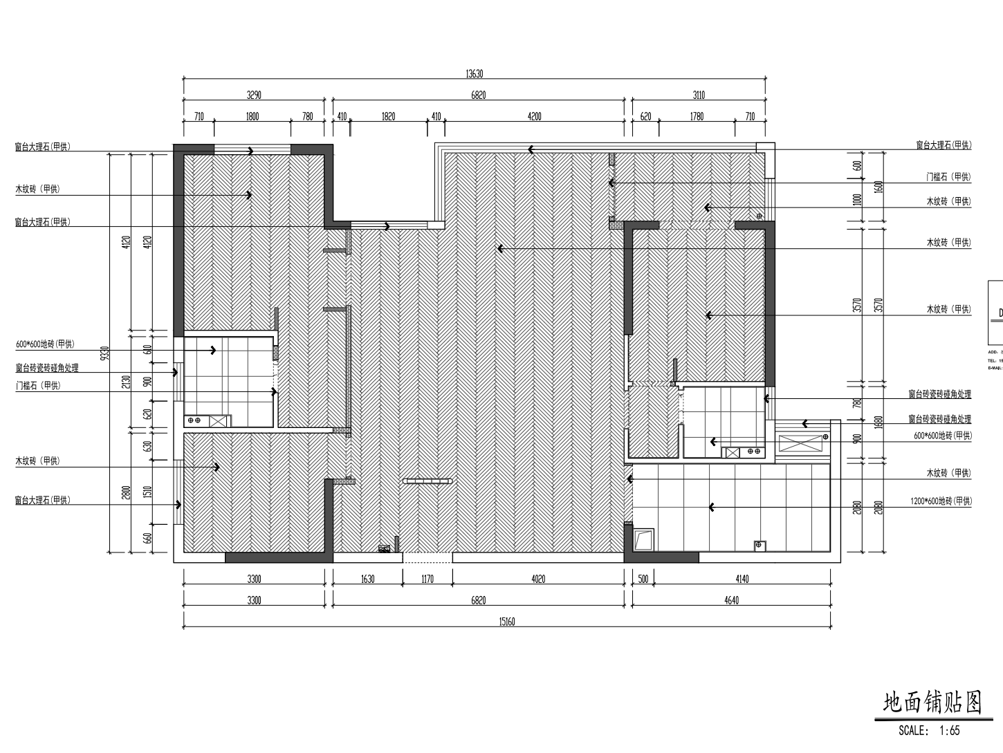
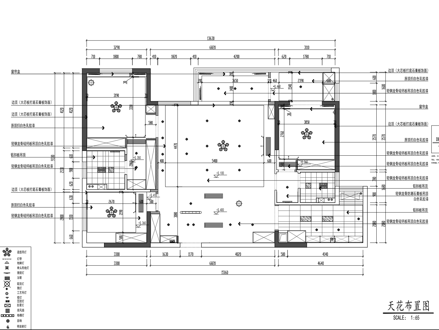
任务4:平面图纸绘制
  • 1 知识储备
  • 2 任务实施
  • 3 企业标准

3种常见吊顶形式