任务3:初步方案设计
-
1 知识储备
-
2 项目实施
-
3 企业标准
上一节
下一节


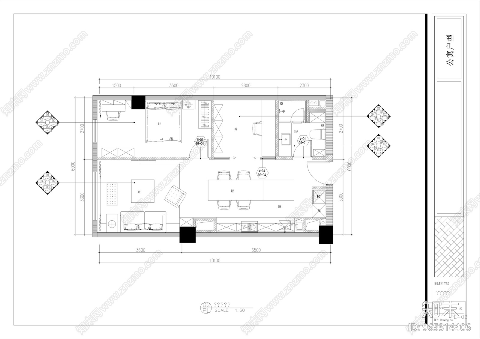
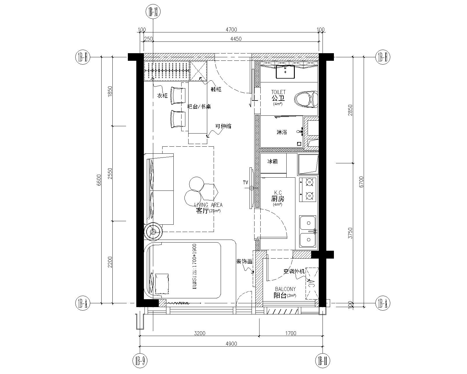
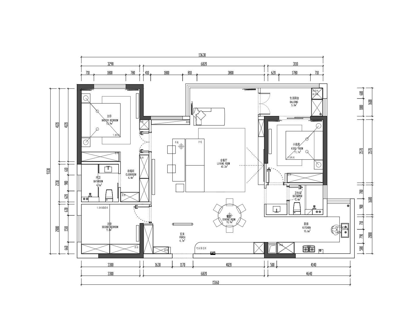
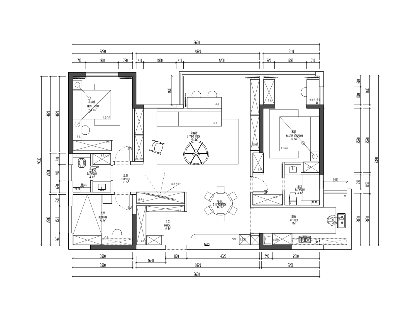
1.玄关

2.厨房

3.卫浴


4.客厅

5.餐厅

6.卧室

7.阳台









方案2:

