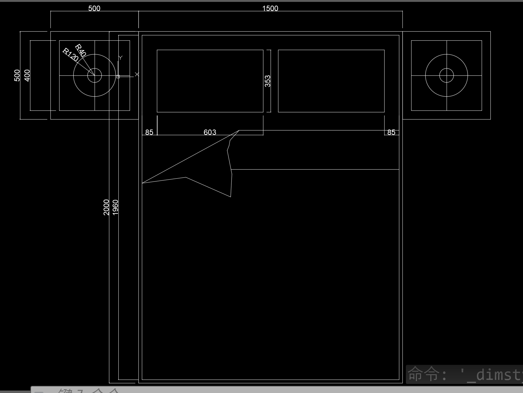
任务内容:绘制床+床头柜几组合
绘制要点:利用矩形工具来绘制双人床+床头柜图形

作图思路:矩形,偏移
教学方法:
1、老师CAD演示;
2、布置本次实践课工作任务和须提交的结果;
3、学生模拟完成绘制基本建筑图形需要的工作程序,教师指导;
4、提交基本建筑图形绘制作业;
5、分组讨论、集中点评。
一、绘制矩形
1.调用矩形命令的方式
①使用菜单栏调用:“绘图”|“矩形”调出绘制矩形命令。如图4-1(a)所示。
②使用工具栏调用:单击“绘图”工具栏“矩形”命令按钮,调用绘制矩形命令。如图4-1(b)所示。

③通过命令行调用:在命令行输入“Rectang”调用绘制矩形命令。
2.矩形的绘制
①输入矩形的两个角点坐标即可;
②调用“矩形”命令后,命令行出现“指定第一个角点或 [倒角(C)/标高(E)/圆角(F)/厚度(T)/宽度(W)]:”,用来设置矩形的特性。

③设定倒角、标高、圆角等绘图参数后,系统将保存此参数值,以后再执行“矩形”命令时,所设定的参数值将作为当前参数,应用于当前图形,直至重新定义。

一、绘制正多边形
1.调用正多边形命令的方式
①使用菜单栏调用:“绘图”|“正多边形”调出绘制正多边形命令。如图4-3(a)所示。
②使用工具栏调用:单击“绘图”工具栏“正多边形”命令按钮 ,调用绘制正多边形命令。如图4-3(b)所示。

③通过命令行调用:在命令行输入“Polygon”调用绘制正多边形命令。
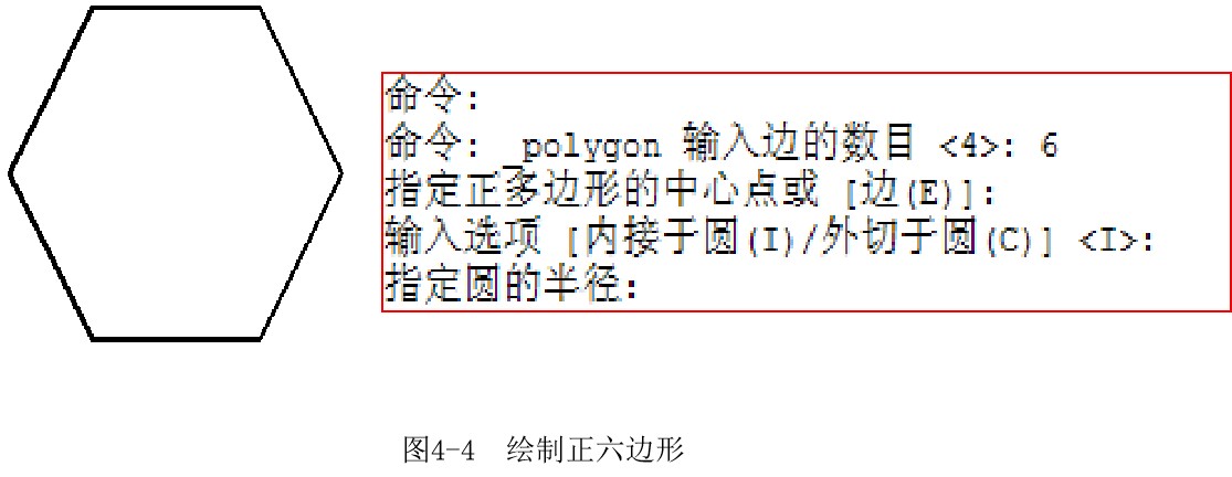
④调用“正多边形”命令后,命令行出现绘图提示,逐一应答后,完成绘图操作。如图4-4所示,为绘制正六边形步骤。
执行命令——指定边数——指定中心——选择绘制内接还是外切多边形——指定多边形半径大小
2.正多边形的子命令
有定边法、外接法和内切法,边的数目由用户指定,默认为正四边形。
定边法 —— 指定正多边形的边数、一条边的两个端点;
内接于圆 —— 指定边数、外接圆的圆心和半径;
外切于圆 —— 指定边数、内切圆的圆心和半径。
