
一日三餐都离不开厨房,厨房操作的好与坏,其实很大程度上影响我们做菜的心情。一个好操作的厨房,能提升生活质量,同时也可以使得效果更高,让人觉得更轻松。所以说,一个井井有条的厨房是多么重要,还没装修或者正在打算装修的朋友,厨房装修的时候一定要先规划好,同时也要多留意一些。
对于现在快节奏的生活方式,更需要现代化的厨房。而一个现代化的厨房应该具备这些功能,不仅仅方便日常的操作,同时也可以给生活添加乐趣,给大家总结分享一下,看看你家的厨房拥有这些功能吗?

第一、流行的动线布局——“洗、切、炒”的顺序

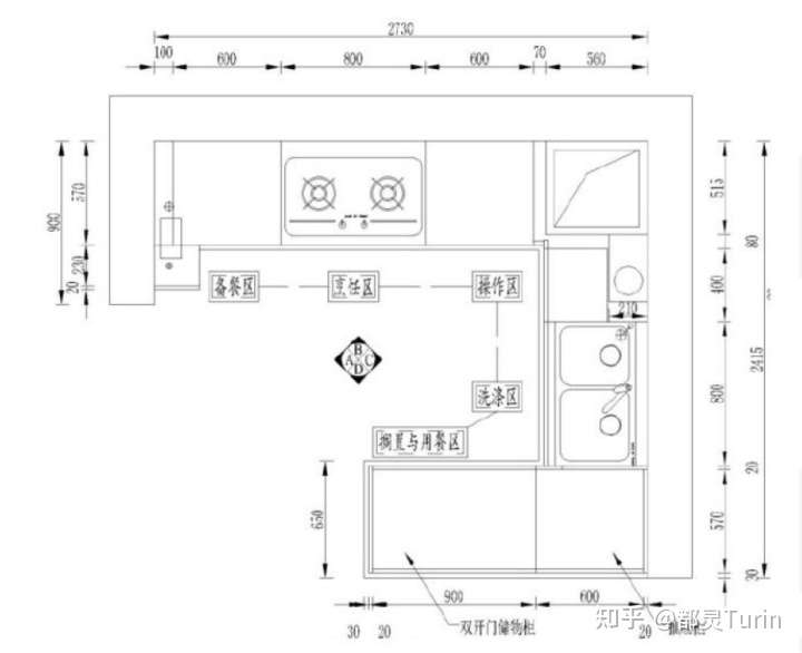
准确来说,其实厨房布局没有统一或者说一定非常这样去布局。但是根据我们的生活经验,在厨房操作更为顺手的布局,往往形成“洗、切、炒”的顺序,空间足够的话,加上一个储物区。动线布局合理了,在厨房做饭菜的时候,不会手忙脚乱,尤其是亲戚朋友到家里做客,更需要高效率做饭菜了。经常在家里下厨的人都很清楚,这样的顺序是非常棒的,让厨房功能区分布合理,效率更高。一个现代化最基本的厨房,就应该布局这样的“洗、切、炒”功能顺序。
第二、岛台功能

一个现代化的厨房,更离不开岛台。岛台其实就是在厨房一个台面,一般都是连接着橱柜或者与餐桌一体这样的设计。无缝拼接和优雅的外观让更多的人选择岛台,日常在厨房,不管是洗东西还是台面放一些东西,都非常实用,视觉上显得更大气,更有现代感。一般来说,在电视剧都会看到的场景,如今在很多家庭中见很多了。

比较常见的岛台其实就是固定的形式,而还有一种岛台可以自由升降高度,更符合人体工程学。不管家里的岛台是固定还是可升降,都是比较具有现代化厨房的表现。家里预算足够的话,选择设计可升降的岛台,更为增添生活乐趣。让家人或者自己在厨房忙活的时候,都是一种享受。
第三、拉篮
绝大部分的厨房空间都是比较紧凑的,为了保证更好的收纳空间,除了利用日常的吊柜和地柜,置物架等之外,还应该设计拉篮。拉篮其实与抽屉柜区别在于,拉手收纳更有序,并且可以把各类东西都可以整齐摆放,一般都是不锈钢的材质,并且地面以漏网的形式,可以起到沥水的作用,同时也比较耐脏,容易清洗。

拉篮可以选择电动,不需要我们手动,尤其是我们手里拿着东西的时候,电动开合就方便很多了,不管是拿取还是存放,都非常方便。
第四、影音娱乐中心
顾名思义,其就是实可以实现在厨房忙活的同时,为了去除枯燥,安装了影音娱乐中心系统,通过投影可控的方式,在厨房可以玩玩游戏、看电视节目、秒变KTV等等,家里如果聚会的话,作用就更好表现出来了。

而司米高端橱柜就是推出了这款以投屏可控的方式,“黑科技”真的太强大了。通过投影的方式,还可以触控,可能在电视电影经常看到的场景,居然在厨房也能实现,真的是太现代化啦。试想一下,家里厨房要是也能有这样的厨房,一家人都要抢着在厨房吧!在厨房做饭菜其实是非常枯燥的,但是该有一些现代化的功能,真的作用很大。
第五,电动门

电动门其实我们不那么陌生,可能一些家庭家里都安装这种门,当然了在一些酒店或者办公楼其实非常常见。但是运用在厨房,真的很少见哦。一个现代化的厨房,更需要电动门,包括门和窗都是电动可控,不需要手动。
第六、可调节灯光颜色
一个高端的厨房,其实灯是很多的,灯不仅仅可以起到照明的作用,更能起到点缀整个空间,增加氛围的作用。通过控制灯光的冷暖,可以影响到我们的心情,所以大家不要小看灯光哈。

当然了,除了上面列举的六大功能区之外,一个现代化的厨房也应该具备一些智能化的功能。
厨房(橱柜)如何优化设计之——动线布局
场景:回家时电视里还播着动画片。孩子坐前面自言自语的摆弄玩具,爱人还在厨房里忙碌着。你看着这一切,忽然出了神:从离家,到毕业,然后结婚生子,一切都像是昨天,这日子快的像……
孩子喊:妈,饿啦。爱人说:还催,你爸屁股钉钉子了,动都不动一下。你笑:好好,来了,这就来了,——过日子,不就是平平安安,吃吃喝喝吗。
碎片化时代,人们的时间被各式各样的APP占据,电视成了手机最好的背景音乐,房间成了自我舔伤的地方,唯剩厨房能让你放下手机,也因此在整个装修流行趋势里,厨房再也不是简简单单支个摊子做饭的地方,而是一家人共同协作、沟通、甚至是“打闹”增添感情的地方。
“金厨银卫”这个说法,现在看来,我们要赋予“金厨”更多的意义了!


按户型布局划分:我们常见的橱柜大约就是:一字型、双一字型、L型、U型、岛台型。

一字型厨房

一字型厨房
一字型厨房:优点:空间走动无影响,使用便捷。缺点:操作台面小,小户型的橱柜空间不够用。 现场设计要点:上下水,燃气表、管道,烟机灶台、水盆、洗菜区、切菜区、炒菜区合理分布。动线的规划重点:冰箱(→工作台)→清洗区→ 处理区→烹饪区(→备膳区),最佳的空间长度应为2.5米-3.5米。但若空间过于狭长,拉长了在直线活动的时间,反而会降低工作效率,这时不建议采用一字型厨房。

双一字型

双一字型
双一字型厨房:优点:厨房一般大于8平米,储物功能相对一字型的要更加强大。缺点:灶台水盆分布两面,会增加操作负担。设计要点:两排橱柜之间的活动空间应大于900mm可以适当增加厨房电器,方便使用。

L型厨房

L型厨房
L型厨房:优点:4-6平米厨房容易实现合理操作。缺点:地柜转角区域使用不便,现在有部分拉篮可以解决此类问题。设计要点:一般根据现场条件,将水盆与灶台尽可能的摆放在L型的两边,增加中间操作区。动线的规划重点:将冰箱、清洗区和准备区安排在同一轴在线,炉具、烤箱或微波炉等设备则放在另一轴在线,彼此的距离约在60~90公分,就能形成一个完美的工作金三角。不过要注意的是,其中一边的长度不宜太长,最长约在2.8米左右,才不会降低工作效率。

U型厨房

U型厨房
U型厨房:优点:洗涤区、烹饪区、操作区和储藏区划分明确。缺点:两个转角使用不方便,拉篮可解决。设计要点:空间大,如果条件允许建议设高柜镶嵌电器。动线的规划重点:冰箱、水槽和炉具间的关系能行成一个正三角形,由于动线简洁方便,使用起来可以相当得心应手。

独立岛台型

岛台与餐桌相连

岛台与吧台相连

岛台与橱柜相连
岛台型厨房:优点:灵活性强,可做餐桌、吧台、操作带等实用方便。缺点:占地面积比较大。设计要点:岛台分为两种,一是独立岛台,可以在岛台上做独立水盆和电磁炉、二是与整体厨房相连的岛台,可当吧台。动线的规划重点:冰箱、水槽和炉具间的关系能行成一个正三角形,而中岛型厨具与其他台面的距离,需保留在100公分左右,才能保留动线的流畅与取用的便利性。

如果家里老人掌勺,请往上无限添加

按厨房功能划分:1食品储存区、2厨具储存区、3清洗区、4切菜准备区、5烹饪烘烤区。缺一不可。

储存区:储藏区是料理的开端,也是料理的结束,换言之,储藏区意指食材、器皿用具藏身之处,所以包含冰箱、橱柜等,里面收纳料理所需材料,锅具、碗盘等物品,当然也要依据空间大小来规划储藏区所占面积。
规划要点1:食物从冰箱或食物柜取出时,与清洗区或准备区距离不宜过远,须考虑烹饪中途临时需要取用,水槽旁若置放冰箱就要特别留意安全问题。
规划要点02: 从天花板延伸到地区面的高柜,足够收纳锅碗瓢盆、小家电用品,用完即放回柜中,可避免空间杂物过多视觉零乱。
规划要点03:收纳的橱柜要考虑收纳对象深度、宽度,以及取用 ,抽拉式、拉门式的设计适合空间狭小的厨房,在摆放上,可将常用的依个人身高置于最理想取用的位置。
清洗区:清洗区在厨房中十分重要,使用频率也非常高,所有与清洗相关的设备都在这一区,包含水槽、洗碗机、滤水系统、垃圾处理系统等,水槽型式、材质、水龙头配件都有多元选择。
规划要点1:水槽型式有单水槽、双水槽可选择,有人喜欢将荤、素食材分开处理,双水槽正好符合此需求,水槽加装盖子的设计,具有延长工作台的优点,适用小空间使用。如无特别的要求,建议用至少600mm以上大单盆,锅可以放进水池内。
规划要点2:水龙头冷热水出水装置,留意煤气管、水管的位置。水槽下方连接排水管,容易散发异味的地方,经常清洗,注意下水反味。
准备区:准备区位于清洗区与烹饪区之间,或为独立的工作台。应该规划多大的台面?视烹饪频率、习惯而定。烹饪习惯较为东方,经常需要煎煮炒炸,食材复杂多样,下锅前的食材处理也较为费事,最好保留大一点的台面。
规划要点1:准备区是受力最重的区域,我们免不了要剁一东西,台面要具备抗压、抗划等特点,材质建议选大理石、石英石、岩板等。
规划要点2:如果空间长度足够,准备区台面尽量保留宽敞,最好有80-100cm的距离,让准备过程也可以很顺畅。
烹饪区:基本的厨具设备包含燃气灶、油烟机、烤箱、微波炉等,家中成员较多或经常宴客,就要在炉具设计上多费心思。与烹饪相关的家电也可考虑在这一区,但须留意近火的安全问题。
规划要点1:国人的饮食习惯会让烹调时间较久,因此炉具的高度要以主要在烹饪的主妇为主,切忌过高造成长期肩酸痛。
规划要点2:安装在炉具上方的抽油烟机是必备品,考虑中国烹饪方式油烟大,建议选择吸力大、噪音系数低的优质产品。
规划要点3:对于忙碌职业的主妇而言,三口或四口炉具,可同时进行不同料理,缩短烹饪时间,多留一点时间给自己休息。
社交区:厨房也是重要的社交场所,也可以说是女性朋友交换个人心情的空间,所以如果有条件的话,建议做个吧台,在半开放式或开放式厨房,吧台和便餐台也是连络家人感情的桥梁。
规划要点1:想要有吧台和便餐台,必须有足够的空间,中岛型厨房有现成岛型吧台可利用,L型厨房可利用某一边作成便餐台。
规划要点2:空间不够宽敞的厨房,可紧邻橱柜设计可折叠便餐台,收取便利,而且不占用有限的空间。
规划要点3:若做为交谊用途,工作台面最好净空,不要置放固定性物品或器具,保持弹性灵活的运用。

下图清洗区离烹饪区太近,未留有足够的操作区,不但风水不好,而且操作不便。


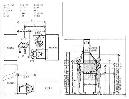
以“人”和“人的活动”为中心设计厨房功能区域分布

另一种形式的U型厨房路线
人体工程学:看图。






颜色最深为经常使用,浅色次之,黄色为不常用。
厨房研究表明,厨房最合理安置省时省力的布局,是遵照食品的储存、准备、清洗和烹饪操作的流程,合理设计。冰箱(储存区)、洗涤和炉灶三大区域空间,组成黄金三角位置,建筑设计术语叫做设计三角。

合理利用空间、减少往复,专家建议,首先要合理设置五大功能区域的距离,其次要合理定位五大功能区域的主要功能用处,特别是个性化的功能,第三是要根据功能定位,合理匹配厨房功能配件,包括功能电器、功能配件和厨房用品等。
以“黄金空间”为设计理念,注重产品的功能细节,更多地考虑存储空间的合理利用,考虑最优化发挥功能件之间的协作效率,一套高效的现代化的整体厨房少不了人性化的功能配件,只有充分的运用好厨房配件,才能真正的做到“井然有序,轻松快捷”。
布局时要注意:
1,洗涤不挨火。
2,烹饪不对门。
3,盆灶大200。
4,炉灶不跨柜。
5,角墙要收口。
6,想到再补充。

