目录

  • 1 课程介绍
    • 1.1 课程介绍
    • 1.2 电子教材与微知库
  • 2 模块一、CAD的基本命令
    • 2.1 AutoCAD的基础知识
    • 2.2 基本图形的绘制命令
    • 2.3 基本图形的编辑命令
    • 2.4 组合图形绘制
  • 3 模块二、CAD的图层、线型、块设置
    • 3.1 工具选项、设计中心和面域创建及运算
    • 3.2 图层设置
    • 3.3 块、属性定义
  • 4 模块三、图案填充及尺寸标注
    • 4.1 图案填充
    • 4.2 尺寸标注
    • 4.3 综合练习
    • 4.4 综合测试
  • 5 模块四、天正CAD绘制建筑平面图
    • 5.1 建筑平面图的绘制
    • 5.2 住宅建筑平面图的绘制
      • 5.2.1 住宅建筑一层平面图的绘制
      • 5.2.2 住宅建筑二~五层平面图的绘制
      • 5.2.3 住宅建筑六层平面图的绘制
      • 5.2.4 住宅平面图绘制测试
    • 5.3 住宅楼图纸的管理、立面图、剖面图生成
    • 5.4 住宅楼图纸布局与输出
  • 6 某五层教学楼天正建筑绘制过程
    • 6.1 门窗表及相关的平面立面图
    • 6.2 一层平面图绘制
    • 6.3 二层平面图绘制
    • 6.4 三层至顶层平面图
    • 6.5 三维-立面-剖面-图形打印输出
  • 7 天正电气
    • 7.1 基本界面
    • 7.2 设备布置
    • 7.3 导线绘制
    • 7.4 消防系统综合案例讲解
  • 8 天正暖通
    • 8.1 电子教材与底图
    • 8.2 地下一层水管平面图
    • 8.3 地下一层通风平面图
    • 8.4 一层采暖平面图
    • 8.5 屋顶加压送风平面图
    • 8.6 楼梯间前室加压送风系统原理图
    • 8.7 采暖系统图
  • 9 补修重修
    • 9.1 第一次课要求
    • 9.2 第二次课要求
    • 9.3 第三次课要求
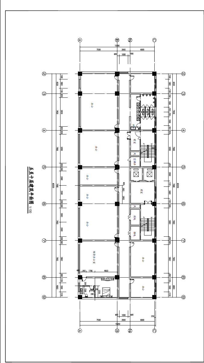
第二次课要求

第二次要求:

绘制PDF文件中的第5张图纸”五至十层平面图“,具体图纸尺寸查看PDF文件,并上传。