在刨床上使用单刃刀具相对工件做直线往复运动进行切削加工的方法,称为刨削(图7-1)。
刨削加工是金属切削加工中具有明显特点的加工方法,其直线单向切削的加工效率虽然不高,但在机床床身导轨、机床镶条等较长较窄零件表面的加工中,刨削有较大的优势。

刨削加工的基本知识
7.2.1 刨床的种类及运动形式
常见的刨床有三种:牛头刨床、龙门刨床和插床。插床实际上是一种立式刨床,它的结构原理与牛头刨床属于同一类型,只是结构上略有区别。
牛头刨床用于加工长度不超过1m的中小型工件,龙门刨床主要用于加工较大型的箱体、支架、床身等零件。插床多用于加工零件的内表面( 键槽居多,小尺寸键槽加工效率较高)。
牛头刨床的主运动为滑枕的直线往复运动,进给运动为工作台通过棘轮机构实现的间 歇进给,棘轮机构(图 7-2)。龙门刨床的主运动为工作台的直线往复运动,进给运动为刀具间歇进给。插床的主运动为滑枕做垂直直线往复运动,进给运动为工作台纵向、横向、圆周方向间歇进给运动。

图7-2 棘轮机构
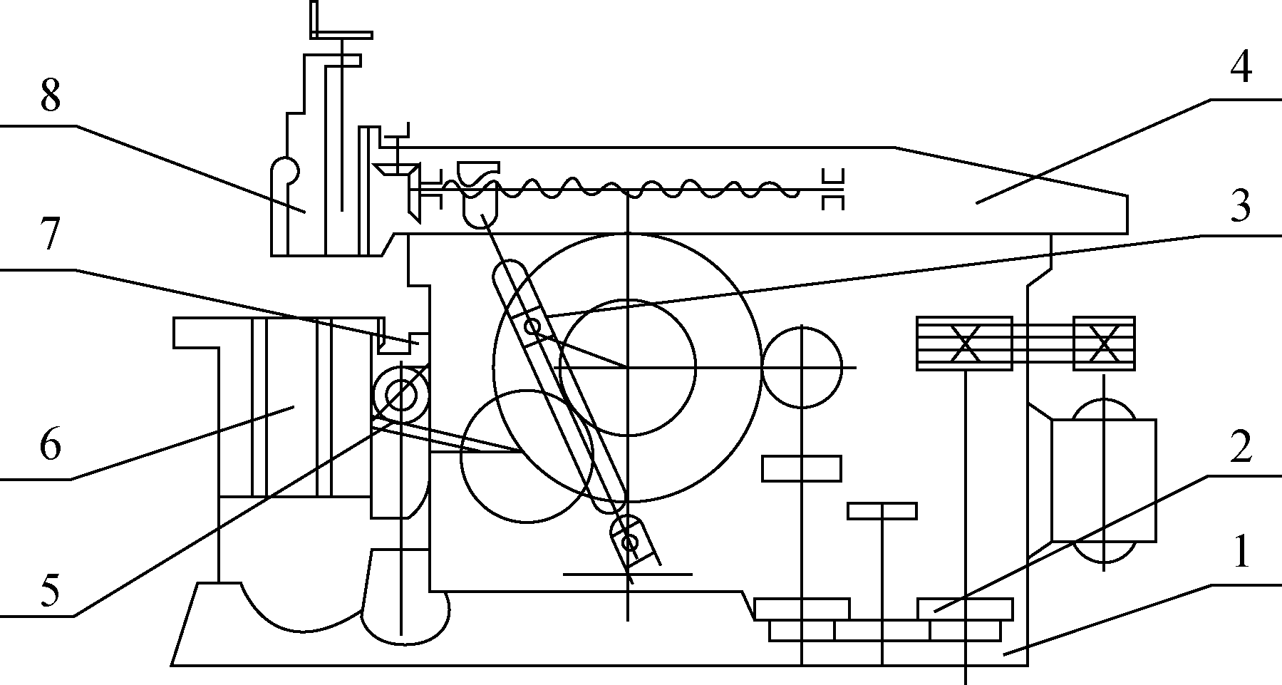
7.2.2 牛头刨床的结构(图7-3)

图7-3 牛头刨床结构示意图
1. 床身:支撑连接各部件。
2. 变速机构:调整切削速度(注意停车变速)。
3. 摆杆机构:将齿轮的旋转运动转换为滑枕的直线往复运动。
4. 滑枕:带动刀架做直线往复运动。
5. 进给机构(棘轮机构):实现自动间歇进给。
6. 工作台:安装夹具和工件。
7. 横梁:带动工作台沿床身垂直导轨做升降运动。
8. 刀架:安装刀具。
7.2.3 刨削加工范围
刨削主要用于加工平面、各种沟槽和成形面等,如图 7-4 所示,请同学们思考一下,这些都是哪些型面的加工?用其他设备是否可以完成?
图 7-4 牛头刨床加工范围
7.2.4 牛头刨床的基本操作(以刨削平面为例进行实操演示)
1. 将工件装夹牢固,同时确定好基准面。
2. 调整好滑枕行程,行程略大于工件长度,工件应在行程范围之内。
3. 开车对刀,手动控制机床,使刀具在移动过程中缓慢接触工件(刀尖与工件相切)。
4. 移开工作台,移动方向与进给方向相反。
5. 进刀(调整工作台上升或调整刀具下降),选择适合的切削深度和速度。
6. 开动机床,移动工作台使工件靠近刀具开始切削(加工过程可使用手动或自动进给)。

