第二节 建筑制图简述
一、建筑制图概念
图形与语言、文字一样,是人们认识自然、表达和交流思想的基本工具 。
• 建筑制图的含义:
• 建筑制图是研究建筑图样绘制和识读的一门课程 ,
是建筑师表达设计意图、交流技术、指导生产施工等
必备的基本知识和技能。
投影因素和非投影因素
• 投影因素:以投影理论为基础
• 非投影因素:非投影因素即制图惯例
– 图例
– 线的粗细变化
二、建筑制图相关标准
1)《建筑制图标准》
GB/T50104-2001
2)《房屋建筑制图统一标准》
GB/T50001-2001
3)《总图制图标准》
GB/T50103-2001

三、建筑制图规范的主要内容
1、总则 2、图纸幅面规格
3、图线 4、字体
5、比例 6、符号
7、定位轴线 8、常用建筑材料图例
9、尺寸标注
【总则】
在建筑工程中,无论是建造高楼大厦,还是简单房屋,都需要一套完善的工程图纸。该图纸是借助于一系列图样,将建筑物的艺术造型、外表形状、内部布置、结构构造、各种设备、地理环境以及施工要求,准确而详尽地表达出来,作为施工的依据。
制图规范的目的是统一房屋建筑制图规则,保证图质量,提高制图效率,做到图面清晰、简明,符合设计、施工、存档的要求,适应工程建设的需要。
制图规范是房屋建筑制图的基本规定,适用于总图、建筑、结构、给水排水、暖通空调、电气等各专业制图。
【图纸幅面规格】
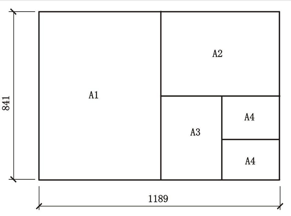
图纸的幅面是指图纸本身的大小规格。图框是图纸上所供绘图的范围的边线。图纸的幅面及图框尺寸,应符合表l-l的规定及图1-l的格式。从表中可以看出,A1是A0幅面的对裁,A2是A1幅面的对裁,其余类推。一般A0~A3图纸宜横式使用,必要时,也可立式使用。同一项工程所用的图纸,不宜多于两种幅面。当需要使用加长图纸时,可在长边加长,图纸的短边不得加长。加长的尺寸必须按照国标有关规定。
图纸的幅面是指图纸尺寸规格的大小,图框是指在图纸上绘图范围的界线,图框线用粗实线绘制。
为了使整套施工图方便装订,国标规定图纸幅面的基本尺寸有五种,其代号分别为A0、A1、A2、A3和A4。
各号图纸幅面尺寸和图框形式、图框尺寸都有明确规定,具体规定见下图。

图纸的幅面格式(单位:毫米)

幅面及图框尺寸

图纸的幅面格式

图纸长边加长尺寸(mm)
标题栏与会签栏
GB/T 50001-2001对图纸标题栏(简称图标)和会签栏的尺寸、格式和内容都有规定。
图纸右下角都有标题栏,用来填写工程名称、设计单位、图名、签字、图纸编号等内容。
会签栏是各专业工种负责人签字区,一般位于图纸的左上角,栏内应填写会签人员所代表的专业、姓名、日期。
对于学生在学习阶段的制图作业,建议不设会签栏。
标题栏
会签栏
【图线】
画在图纸上的线条统称为图线。为了使各种图线所表达的内容统一,国标对建筑工程图样中图线的种类、用途和画法都作了规定。
粗、中、细线形成一组,叫做线宽组。在同一张图纸内,采用比例一致的各个图样应采用相同的线宽组。如表所示。其中的线宽b应根据图形复杂程度和比例大小确定。
常见的线宽b值为0.35、0.5、0.7、1、1.4、2.0 mm。
线宽组(mm)

图框线、标题栏线的宽度(mm)
线型有实线、虚线、单点长画线、双点长画线、折断线和波浪线等,其中有些线型还分粗、中、细三种。各种线型的规定及其一般用途。

画线时应注意以下几点:
(1)在同一张图纸内,相同比例的图样,应采用相同的线宽组;
(2)虚线的画和间隔应保持长短一致,点画线或双点画线画的长度大致相等;
(3)虚线之间、点画线之间、虚实线之间相交时,应交于画线处;
(4)点画线和双点画线两端应是画而不是点;
(5)图线不得与文字、数字或符号重叠。
【字体】
建筑工程图中的汉字、数字、字母等必须做到笔画清晰、笔锋满格、字体端正、排列整齐、间隔均匀。
图样及说明中的汉字,应符合国务院公布的《汉字简化方案》的有关规定,宜采用长仿宋体,字体的高度代表字体的号数(见下表),应从下列系列中选用:3.5、5、 7、10、14、20mm。字体的高宽比为√2∶1,字距为字高的1/4

长仿宋体字的书写要领是:
• 横平竖直,横笔基本要平,可顺运笔方向稍许向上倾斜2°~5°。 • 注意起落,横、竖的起笔和收笔,撇、钩的起笔,钩折的转角等,都要顿一下笔,形成小三角和出现字肩。
• 结构匀称,填满方格。笔画布局要均匀,字体构架要中正疏朗、疏密有致




【比例】
根据其大小采用适当的比例绘制,图样的比例是指图形与实物相对应的线性尺寸之比。比例的大小是指其比值的大小,如1∶50大于1∶100。
比值大于1的比例,称为放大的比例,如5∶1;比值小于1的比例,称为缩小的比例,如1∶100。
比例宜注写在图名的右侧,字的底线应取平齐,比例的字高应比图名字高小一号或两号。

为使画图快捷准确,可利用比例尺确定图线长度。比例应以阿拉伯数字表示,如1∶100、 1∶10、1∶5等。
建筑工程图中所用的比例应根据图样的用途与被绘对象的复杂程度,从表中选用,并优先选用常用比例。


【符号】
一.剖切符号
1.剖切符号应由剖切位置线及投射方向组成,均应以粗实线绘制。
2.剖切符号的编号宜采用阿拉伯数字,按顺序由左至右由上至下连续编排,并应注写在剖视方向线的端部。
3.需要转折的剖线位置线,应在转角的外侧加注编号。
4.剖面图的剖切号宜注在±0.00标高的平面上

二.断面的剖切符号
1.断面的剖切符号应只用剖切位置线表示,并应以粗实线绘制,长度宜为6~10mm。
2.断面剖切符号的编号宜采用阿拉伯数字,按顺序连续编排,并应注写在剖切位置线的一侧;编号所在的一侧应为该断面的剖视方向。如图所示

三.索引符号与详图符号

四.引出线


五.其它符号
对称符号由对称线和两端的两对平行线组成。
对称线用细点划线绘制;其长度宜为6~10mm,每对的间距宜为2~3mm;
对称线垂直平分于两对平行线,两端超出平行线宜为2~3mm。

连接符号应以折断线表示需连接的部位。两部位相距过远时,折断线两端靠图样一侧应标注大写拉丁字母表示连接编号。两个被连接的图样必须用相同的字母编号

指北针的形状宜如图所示,其圆的直径宜24mm,用细实线绘制;指针尾部的宽度宜3mm,指针头部应“北”或“N”字。需用较大直径绘制指北针时,指针尾部宽度宜为直径的1/8。

【定位轴线】
1.定位轴线应用细点画线绘制。
2.定位轴线编号应注写在轴线端部的圆内。圆直径为8~10mm。
3.拉丁字母的I、O、Z不得用做轴线编号。



5.圆形平面图中定位轴线的编号,其径向轴线宜用阿拉伯数字表示,从左下角开始,按逆时针顺序编写;其圆周轴线宜用大写拉丁字母表示,从外向内顺序编写。

6.折线形平面图中定位轴线的编号可按如下图形式编写。

【常用建筑材料图例】
为简化作图,工程图样采用各种图例表示所用建筑材料,又称为建筑材料图例。当建筑物或建筑配件被剖切时,通常在图样中的断面轮廓线内应画出建筑材料图例。 在GB/T 50001-2001中规定了常用建筑材料图例的画法,对其尺度比例不作具体规定,绘图时可根据图样大小而定。

【尺寸标注】
一.尺寸的组成及其注法的基本规定
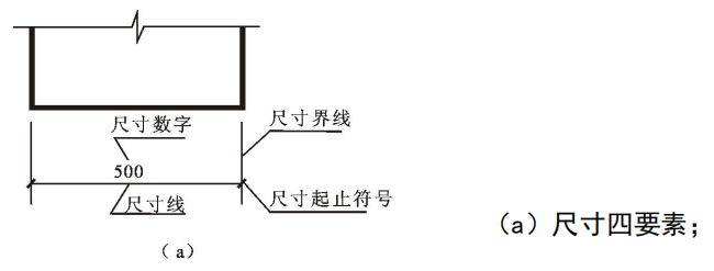
1.图样上的尺寸应包括尺寸线、尺寸界线、尺寸起止符号和尺寸数字四要素。

2.尺寸线、尺寸界线用细实线绘制。
3.尺寸起止符号一般用中实线的斜短画绘制,其倾斜的方向应与尺寸界线成顺时针45°角,长度宜为2~3 mm。

4.半径、直径、角度、弧长的尺寸起止符号宜用箭头表示

二.尺寸的排列与布置
(1)尺寸宜注写在图样轮廓线以外,不宜与图线、文字及符号相交。当尺寸线是水平线时,尺寸数字应写在尺寸线的上方,字头朝上;当尺寸线是竖线时,尺寸数字应写在尺寸线的左方,字头向左。

(2)互相平行的尺寸线,应从被注写的图样轮廓线由近向远整齐排列,小尺寸在里面,大尺寸在外面。小尺寸距图样轮廓线距离不小于10mm,平行排列的尺寸线的间距宜为7~10 mm。

三.尺寸标注示例




尺寸标注的常见错误 举例



习题作业:制图符号练习
根据课堂学习情况,制定制图符号的临摹练习。

