屋顶创建
-
1 课前思考
-
2 章节导学
-
3 教案
-
4 课件
-
5 本节视频
-
6 课后话题讨论
-
7 课后作业
-
8 留言区
上一节
下一节
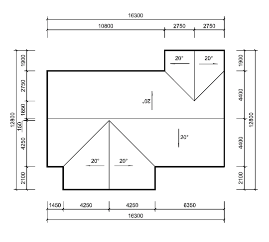
第9讲课前思考1:屋面和楼面一样么?请说一下你身边建筑的屋顶都是什么样子的。









