拓展训练 小型办公室网络组建
上一节
下一节
1.项目描述
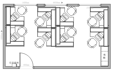
新新集团在办公楼的三层办公室拥有8台计算机,随着网络技术的发展和办公自动化的普及,所有电脑需要与集团的企业网连接以实现办公自动化,能够网络资源下载、资料查询、收发电子邮件,以及网上电子商务活动等。办公室布局如图所示。
新新集团某办公室布局图

2.项目要求
根据网络工程设计与实施的工作流程,完成新新集团办公室网络的需求分析、网络系统设计、网络工程施工与验收。
3.项目实施步骤
(1)网络需求分析
通过网络搜索、查阅资料等方式,根据给定的办公室布局图及用户要求,进行网络需求分析,写出网络需求分析报告。
(2)网络系统设计
根据网络需求分析,进行网络拓扑设计、选择网络技术、选择网络设备、网络布线设计等,并写出网络设计方案。
(3)网络工程施工
根据网络设计方案,制定网络工程施工计划。在条件许可的情况下,进行实物操作训练;如果条件不允许,可以采用模拟器加强实践技能训练。
4.模拟公司参与竞标
(1)通过网络学习招标文件、投标方案的撰写。
(2)按照3-6人一组组成团队,模拟参与竞标的公司,每个团队推选一名项目经理,组织招标文件、投标方案的撰写,参与竞标与答辩等。
(3)组成2-4人的专家委员会,对投标方案进行评标。
(4)合同的撰写与签订。
5.提交文档

