平整场地、挖基槽工程定额工程计算
-
1 导学
-
2 PPT
-
3 视频
-
4 案例视频
上一节
下一节
学习目标:
通过本章节的学习,了解土石方工程包含的基本内容;熟悉土石方工程定额的有关说明;掌握平整场地、挖基槽的计算方法。
重点、难点:
重点:平整场地的计算方法
难点:挖基槽工程量的计算
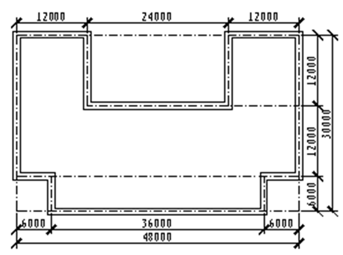
课程导入:
试计算图示建筑物人工场地平整的工程量及其综合基价,墙厚均为240,轴线均坐中。


