建筑面积
-
1 导学
-
2 PPT
-
3 视频
-
4 单元测验
-
5 案例视频
上一节
下一节
学习目标:
通过本章节的学习,应了解建筑面积的基本概念,熟悉建筑面积的作用,掌握建筑面积的计算规则。
重点、难点:
重点:建筑面积的计算规则。
难点:全部计算、部分计算规则的运用。
课程导入:
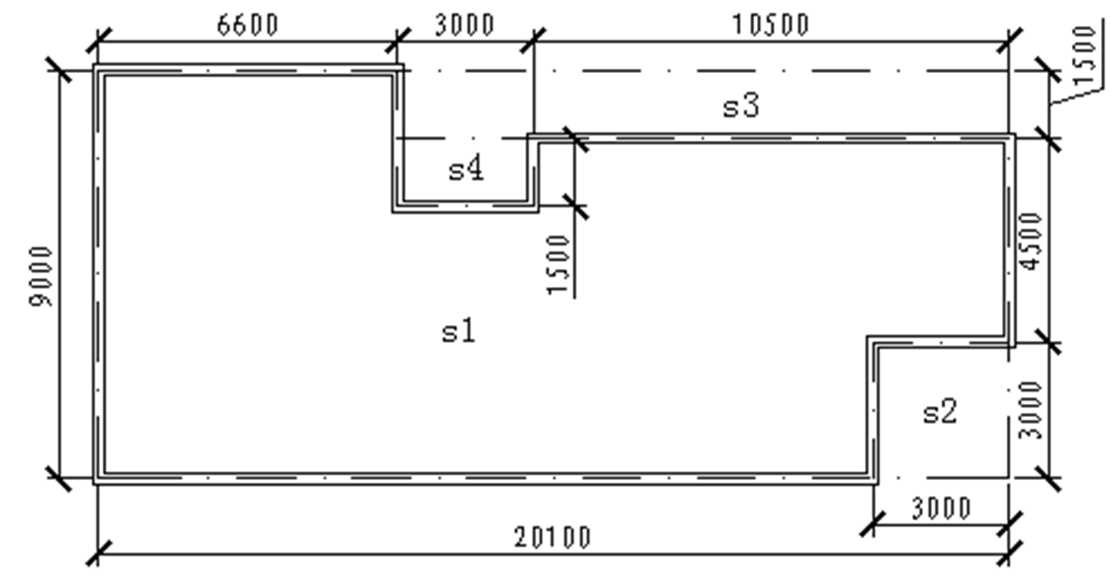
某单层建筑物外墙轴线尺寸如图所示,墙厚均为240,轴线坐中,试计算建筑面积。


