目录

  • 1 绪论
    • 1.1 绪论
  • 2 建筑平面设计
    • 2.1 主要使用房间的设计
    • 2.2 辅助使用房间的设计
    • 2.3 交通联系部分平面设计
    • 2.4 建筑平面组合设计
  • 3 建筑剖面设计
    • 3.1 建筑剖面设计
  • 4 建筑立面设计
    • 4.1 建筑立面设计
  • 5 基础与地下室
    • 5.1 基础概述
    • 5.2 基础分类
    • 5.3 地下室防潮防水
  • 6 墙体
    • 6.1 墙体概述
    • 6.2 砌体墙细部构造
    • 6.3 砌体墙砌筑实训
  • 7 楼地层构造
    • 7.1 钢筋混凝土楼板
    • 7.2 楼地面装修
  • 8 楼梯
    • 8.1 楼梯组成、类型、尺度
    • 8.2 楼梯设计
    • 8.3 钢筋混凝土楼梯构造
  • 9 屋顶
    • 9.1 屋顶概述
    • 9.2 平屋顶排水设计
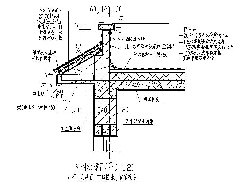
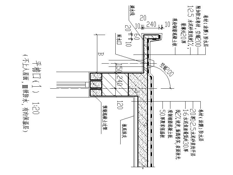
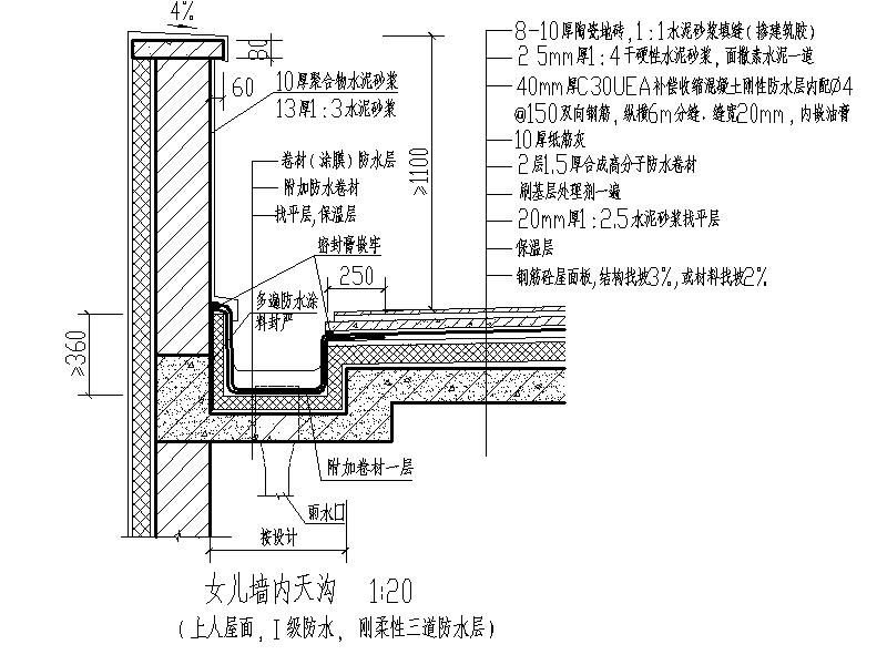
    • 9.3 平屋顶构造
    • 9.4 屋顶实训
  • 10 门窗
    • 10.1 门窗
  • 11 变形缝
    • 11.1 变形缝
  • 12 建筑防火与安全疏散
    • 12.1 建筑防火与安全疏散
平屋顶构造
  • 1
  • 2